Choosing an architect + the plans for our house


Update: We ditched these plans in favour of a more humble design. Read our post: Why we ditched our 80K kitchen extension plans and How much does an architect cost? if you’re trying to make similar decisions.


Hello! I've been meaning to get this post up for months but I decided I wanted to share it shortly before the renovation starts (hopefully on schedule to kick off in late April) so it won't be so much of a wait on progress shots. 

If you've not followed my renovation, I've moved in to a 3 bed house in Brighton in serious need of love, see for yourself and catch the full before pics here, and ideas for the house here

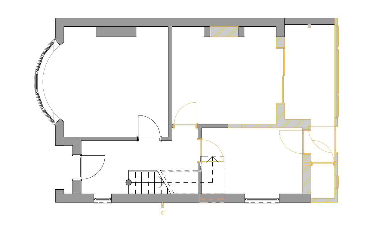
Now that we've got all the drawings back from our architect and firm plans in place for the ground floor, it's becoming really real – I can really see how drastically better we're going to be making the house and I'm excited to share.

So this is what our floor plan looks like currently: 

That kitchen really is small and doesn't flow well, but we have some good space to play with between the dining room, sunroom and downstairs loo.

We're renovating the house in two stages – ground floor first, upstairs later.

Mainly because we want to get the living spaces right within our budget and the less important stuff to us (like bathroom and bedroom where we spend less time) we can save the funds and do it later. 

Why did I choose to work with an architect?

I had some initial ideas of what we could do to the ground floor to really open up those back rooms and give us a nice big kitchen-diner, but as there are annoying elements of the layout – like the dining room and kitchen back wall not being flush with each other, it wasn't as simple as "just knock down the wall between the kitchen diner".

I was adamant we needed a downstairs loo too and definitely didn't want the existing loo to stay in that corner where there was the potential for it to be just an isolated box in the middle of a big space – no way. 

It was clear we needed help and confirmation that our ideas were doable within our budget so we appointed a local architect to help us design and draw it. 

Now, I won't share his details on here yet as I should run it past him first but if you're local and you need a recommendation – email me and I'll put you in touch. 

Our architect was a bit of a dream really.

Mainly because he ran a construction company alongside his architect business which gave him extensive knowledge on materials and the actual build itself. Running a building firm gives him an upper hand on knowing what we can do with our budget, but saying this we still haven't had quotes back so I can't comment fully. His costs also included a design of the whole house not just the ground floor. This meant that if we ever wanted to do a loft conversion, we had the correct steel beams in place downstairs to take the load. It also saves us money on architect fees for the bathroom renovation later down the line.

So we found an all round winner really! And he's a lovely guy too. 

The price and process from start to present

We have another post for you if you’re asking “how much does an architect cost?” so make sure to check that out.

We found our architect's details on a local Facebook community board as he came highly recommended by people doing similar projects. I pinged him an email and he came to visit the house shortly after chatting online to suss out the job and quote for the work. We got on well, spoke about the potential the house had, the ideas I'd already had for it and he pretty much caught my vision in that half an hour. 

Next he sent over his quotes to us so we could compare these with 2 other architects I had chats with (and didn't get the right feeling from).

Typically costs from architects were broken down in 3 parts:

1. A measured survey

Roughly £500. An absolute necessity for the architect to be able to design to scale. This involved us leaving the keys with the architect, he let himself in when we were at work and did a full measured survey of the whole house which helped him on the next stage – producing scale drawings needed for things like the roof build, drainage, heating, demolition etc.

2. The design/drawings **for the whole house not just the ground floor**

Roughly £2500 (including planning + building regs which amounted to about £1K on its own, excluding structural drawings which are about another + £500 on top). So far I feel like this was money well spent as the intricacy to detail in the measurements, drawings and materials itemised means that the contractor we hire shouldn't really make mistakes. The drawings, plans and itemised schedule we got back from our architect outlined everything from measurements, drainage, materials needed, and loads more. It is a blueprint for us to take to a kitchen designer to just plan with all the layout, electrics and lighting in mind... and it's a blueprint for getting an accurate quote from contractors. I doubt a build like ours could happen without these plans, and our project is considered small-fry in the architecture world. I was really happy with our architects work though as you could tell he knew the trade and what materials are best to use for even small things like pipe work.

3. Project managing the build

This was quoted by few architects I spoke with but it basically means if you want them to oversee the project and get less grey hairs, they can do so. It's expensive. We were tempted but so far have decided to take this on ourselves. My thoughts are that if we can appoint a contractor who is used to this type of work, they pretty much manage the trades themselves. We'll see. 

The final designs

We didn't do too many revisions on these at all. The first set of drawings our architect provided are pretty much this, only originally we requested a pitched roof with skylights in place of the sun room, but I think we'll opt for a more affordable flat roof with velux windows to let light in. 

Here is the demolition plan. As you can see from everything outlined in yellow, we're knocking right through and completely re-building the sun room. (UPDATE: We eventually completely changed this idea! You can read about it in “Why we ditched our £80K kitchen extension plans”)

Screen Shot 2017-02-23 at 12.32.52.png

And here is how it will look when finished from the back garden...

HOW IT LOOKS NOW

HOW IT LOOKS NOW

HOW IT WILL LOOK LATER ON

HOW IT WILL LOOK LATER ON

We're going to raise the roof height where the sun room currently stands taking it right up to the upstairs window. We'll be installing Velux windows in the ceiling for light, and big double sliding doors for the view of the garden. 

There's a bit of a drop down to garden level, so we'll have a juliette glass balcony across the right set of doors. 

Inside, the kitchen and dining room layout will essentially be something like this...

This is the electrical plan that's been provided but it's the clearest one I can show for layout. 

As you can see, we are moving the kitchen to the opposite side of the house. The chimney breast will be opened up to insert a double oven, and the sink will be positioned on an island. We're installing a stud wall and putting a vertical understair toilet in the hallway. Originally I wanted to be able to walk into the house and see directly to the garden but it got really tricky to know where to position the toilet. I'm happy with this though, it'll be really handy keeping a loo downstairs. 

The big space to the right of the toilet will be our dining area. This is big enough for a 6 person wooden table (my dream to own!) and we'll perhaps have a radiator close by to heat that space. 

So that's the design we're settled on. The structural engineer was called in to measure up for the 5 steel beams we're putting in and building regs and planning have all gone through (the architect sorts all that though, I don't actually know what it all means!).

We've started asking for quotes of various recommended contractors now and we pretty much know who we will be choosing at this stage, just want to make sure the work is priced accurately so we're getting several in to compare. 

Next up on my radar is kitchen shopping. The fun part!

Thanks for reading, 

Fi x

See also:

Fiona Duffy

Interior Designer & Renovator
Specialising in affordable renovations

Previous
Previous

My new Willow & Hall footstool – a piece of luxury!

Next
Next

Wood flooring: Laminate Vs Real wood – which is better?